Skip to content Skip to sidebar Skip to footer

kitchen design measurements Household measurement chart

If you are looking for Household Measurement Chart | Cooking measurements, Baking conversion chart, Metric conversion chart you've came to the right web. We have 18 Images about Household Measurement Chart | Cooking measurements, Baking conversion chart, Metric conversion chart like Kitchen Design Measurements, Measure Your Kitchen | Modern Kitchen Design and also Helpful Kitchen Cabinet Dimensions Standard for Daily Use. Here it is:

Household Measurement Chart | Cooking Measurements, Baking Conversion Chart, Metric Conversion Chart

Household Measurement Chart | Cooking measurements, Baking conversion chart, Metric conversion chart www.pinterest.com

chart measurements measurement conversion metric conversions household measures kitchen table almanac cooking weights equivalents printable baking system nursing substitutions cheat

How To Convert Metric Measurements Into Imperial Measurements

How to Convert Metric Measurements into Imperial Measurements www.wideopeneats.com

metric chopping conversions wideopeneats mum worktop giftsfromhandpicked

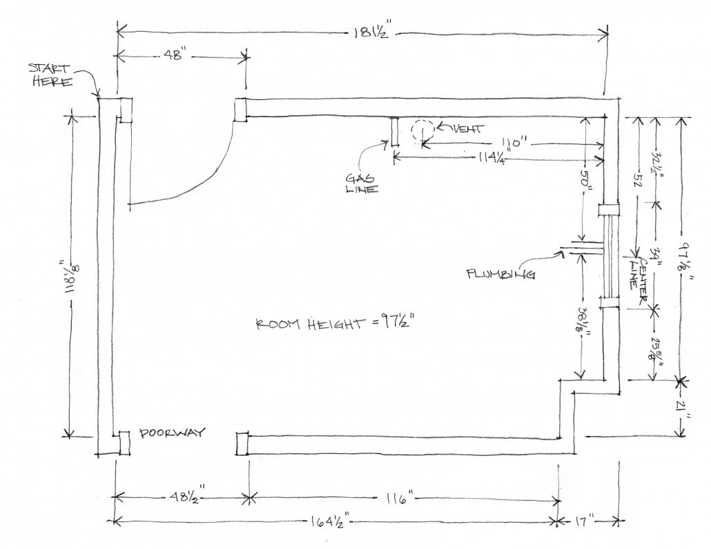
Kitchen Design Measurements

Kitchen Design Measurements disegnbathroom.blogspot.com

freehand kuche drawn messung finest

Kitchen Idea Design And Dimensions

kitchen idea design and dimensions ind-eng-design.blogspot.com

dimensions idea kitchen

Kitchen Shallow Base Cabinets Kitchen Traditional With Shallow Pertaining To Sizing 1024 X 952

Kitchen Shallow Base Cabinets Kitchen Traditional With Shallow pertaining to sizing 1024 X 952 www.pinterest.com

cabinets kitchen cabinet base shelves shallow info

Deadpool Logo Car/Van/Bumper/Window Vinyl Decal Sticker | Vital Signs

Deadpool logo Car/Van/Bumper/Window Vinyl Decal Sticker | Vital Signs www.vitalsigns.graphics

Kitchen Ideas

Kitchen Ideas onitekkitchen.com

Measure Your Kitchen | Modern Kitchen Design

Measure Your Kitchen | Modern Kitchen Design www.modcabinetry.com

measure measurement modcabinetry

Helpful Kitchen Cabinet Dimensions Standard For Daily Use

Helpful Kitchen Cabinet Dimensions Standard for Daily Use www.stuffmirror.com

dimensions kitchen cabinet standard cabinets sizes height measurements helpful daily kitchens layout commercial rta cocina door chart building interior 10x10

Catering Equipment Repair And Maintenance Services | Aspen Services

Catering Equipment Repair and Maintenance Services | Aspen Services aspenservice.co.uk

repair maintenance equipment catering kitchen services commercial aspen

Useful Kitchen Dimensions And Layout - Engineering Discoveries

Useful Kitchen Dimensions And Layout - Engineering Discoveries engineeringdiscoveries.com

utiles disposition

Kitchen Idea Design And Dimensions

kitchen idea design and dimensions ind-eng-design.blogspot.com

dimensions idea kitchen

Commercial Oven - CONDO - MIWE - Electric / Free-standing / For Bakeries

Commercial oven - CONDO - MIWE - electric / free-standing / for bakeries www.archiexpo.com

deck archiexpo miwe ovens bakeries

Pin Page

Pin page www.pinterest.com

trenders

Useful Kitchen Dimensions And Layout - Engineering Discoveries | Kitchen Interior Design Decor

Useful Kitchen Dimensions And Layout - Engineering Discoveries | Kitchen interior design decor www.pinterest.de

Useful Kitchen Dimensions And Layout - Engineering Discoveries

Useful Kitchen Dimensions And Layout - Engineering Discoveries engineeringdiscoveries.com

discoveries buildingandinteriors disposition

Kitchen Idea Design And Dimensions

kitchen idea design and dimensions ind-eng-design.blogspot.com

dimensions idea kitchen

Kitchen Design Dimensions - Form Kitchen

Kitchen Design Dimensions - Form Kitchen formkitchen.blogspot.com

Helpful kitchen cabinet dimensions standard for daily use. Kitchen design measurements. Freehand kuche drawn messung finest